0
Sie habe noch keine Anzeigen auf Ihrer Merkliste!
  • Alle Anzeigen
  • Fleischwirtschaft (232)
  • Metzgereibedarf (216)
  • Ladeneinrichtung Fleischerei (0)

Das Angebot richtet sich an Gewerbetreibende ...

Für das hier beworbene Angebot gelten die Geschäftsbedingungen des Anbieters dieser Anzeige. Der Anbieter ist gewerblicher Anbieter 

Sofern nicht anders beschrieben, sind alle Preisangaben in Euro und  Nettopreise zzgl. Mehrwertsteuer!

Hinweise für Ihre Sicherheit

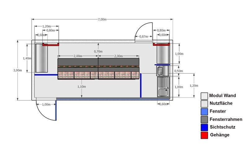
Metzgerei-Verkaufscontainer 7x3m


Anbieter: DL-Verkaufsmodule GmbH Angebot veröffentlicht am 15.04.2026 Gebrauchtware DE-Marxze Marxzell-Pfaffenrot Standort anzeigen
Anbieter: DL-Verkaufsmodule GmbH Angebot veröffentlicht am 15.04.2026 Gebraucht DE-Marxze Marxzell-Pfaffenrot

Bei der Nutzung von Google Maps werden von Google auch Daten über die Nutzung der Maps-Funktionen durch Besucher der Webseiten erhoben, verarbeitet und genutzt.

Beschreibung zu Metzgerei-Verkaufscontainer 7x3m

Metzgerei-Verkaufsmodule, 7x3m, gebraucht, Vollausgestattet

Inventarausstattung: 

Glas-Eingangstüre für Kunde  

Seiteneingang (Personal / Anlieferung)

2 Arbeitstische

2 Kühltheken

Ausgussbecken mit Handwaschbecken

Spüle mit Hygienepaket

1 Seifenspender

1 Handtuchhalter

Außenwasseranschluss ½ Zoll

Abwasser über HT 50mm

1 Stück 16 A Stromanschluss

Feuerlöscher

Klimaanlage mit Heizfunktion

Angebotsart:

Nettopreis: 75,00€ zuzüglich Mehrwertsteuer

Zahlungsbedingungen: Lieferung ab Pfaffenrot. ab 75,- € Netto am Tag zuzüglich MwSt und Transport 

Standort: Im Gewerbegebiet 7, DL-Verkaufsmodule GmbH, Marxze Marxzell-Pfaffenrot, Baden-Württemberg, Deutschland

Anfrage senden









zahlen

Felder mit einem * müssen ausgefüllt sein!


Ihre eingegebenen Daten werden aus Sicherheitsgründen gespeichert!
Informationen zum Schutz Ihrer Daten

Kontaktdaten

DL-Verkaufsmodule GmbH
Domenic Landgraf
Im Gewerbegebiet 7
76359 Marxzell-Pfaffenrot
Baden-Wuerttemberg
Deutschland

Festnetz-Telefon: 07248/9269660

Details der Anzeige

Anzeigen-ID: 250496

Veröffentlicht: 15. April 2026 10:04Uhr

Aufrufe: 11

Standort

Im Gewerbegebiet 7, DL-Verkaufsmodule GmbH
Marxze Marxzell-Pfaffenrot
Baden-Württemberg
Deutschland

Anfrage senden









zahlen

Felder mit einem * müssen ausgefüllt sein!


Ihre eingegebenen Daten werden aus Sicherheitsgründen gespeichert!
Informationen zum Schutz Ihrer Daten

Kontaktdaten

DL-Verkaufsmodule GmbH
Domenic Landgraf
Im Gewerbegebiet 7
76359 Marxzell-Pfaffenrot
Baden-Wuerttemberg
Deutschland

Festnetz-Telefon: 07248/9269660

Diese Anzeige dem Plattform-Betreiber melden

oben