0
Sie habe noch keine Anzeigen auf Ihrer Merkliste!
  • Alle Anzeigen
  • Gastronomie Hotel (279)
  • Gastroimmobilien (81)
  • Deutschland (54)
  • Sachsen (1)

Angebot von privatem Anbieter!

Diese Anzeige ist ein Angebot eines privaten Anbieters.  Es ist trotzdem möglich, dass Mehrwertsteuer berechnet wird. Bitte klären Sie dies mit dem Anbieter der Anzeige. Hinweise für Ihre Sicherheit

Bahnhof Nebra: Gastronomie zu vermieten


Angebot veröffentlicht am 05.03.2026 Gastroimmobilie DE-Unstruttal
Angebot veröffentlicht am 05.03.2026 Gewerbeimmobilie

Beschreibung zu Bahnhof Nebra: Gastronomie zu vermieten

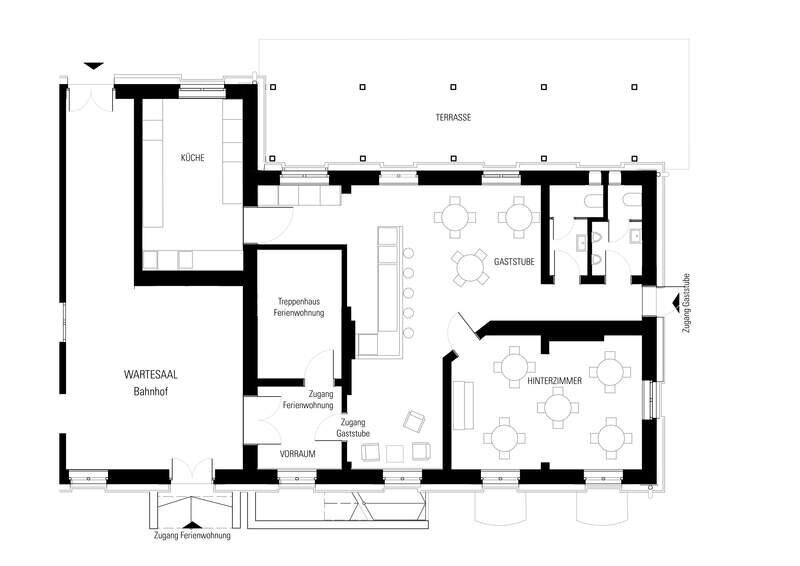
Direkt am Unstrutradweg: 90 qm, ca. 35 Innenplätze, Freisitz, hauseigene Frequenz durch Übernachtungs-/Seminarbetrieb, Veranstaltungen

Im historischen Bahnhofsgebäude Nebra wird die gastronomische Einheit neu vergeben. Gesucht wird ein/e Betreiber/-in mit eigenständigem Konzept.

Das Bahnhofsgebäude entwickelt sich derzeit zum neuem Begegnungsort im schönen Unstruttal, wo Menschen gern zu Gast sind, Kultur erleben und in Austausch kommen. Leitidee des Projekts ist 'mehr Wir'.

 

 

Standort & Frequenz

Direkte Lage am Unstrutradweg (ca. 40.000 Radreisende p.a.) - in Nebra mit klarer Alleinstellung und kaum Konkurrenz in der weiteren Umgebung. 

Zusätzlich:

  • stündliche Regionalzugverbindungen nach Naumburg und Wangen (Besucherzentrum Arche Nebra)

  • Pendlerverkehr an Werktagen

  • Tages- und Ausflugstourismus an Wochenenden

Ergänzende Frequenz im Gebäude selbst:

  • ca. 300 Übernachtungsgäste jährlich mit regelmäßiger Nachfrage nach Frühstücks- und Abendangeboten

  • monatliche Kulturveranstaltungen (20–50 Besucher)

  • wachsender Workshop- und Seminar-Betrieb

 

 

Die Einheit

 

  • ca. 90 qm
  • ca. 35 Sitzplätze innen

  • Freisitz auf angrenzender Wiese und zusätzlicher überdachter Außenbereich unter historischem Vordach (Außenplätze in ähnlicher Größenordnung)

  • seperater Küchenraum mit Gasanschluss (Ausstattung nach Betreiberkonzept)

  • Lager- und Personalräume im Keller

  • öffentliche Parkplätze im direkten Bahnhofsumfeld

Die Einheit wird derzeit final ausgebaut. Es besteht die Möglichkeit der Mitgestaltung und Abstimmung auf das eigene Konzept. Bei einer Beteiligung an Ausbau und Ausstattung können entsprechende Mietmodelle individuell vereinbart werden. Eine finanzielle Beteiligung an der Ausstattung der Küche ist möglich.

 

Betreiberprofil

  • eigenständiges gastronomisches Konzept

  • unternehmerische Verantwortung

  • Qualitätsanspruch und langfristige Perspektive

Das gastronomische Profil liegt vollständig in der Verantwortung des Betreibers, so dass Küche, Stil und Positionierung frei entwickelt werden können. Eine eigene Marke und eigenständige Außendarstellung sind gern gesehen. Die Zusammenarbeit bei Veranstaltungen und Gruppenformaten im Haus ist gewünscht.

Perspektivisch ist auch die Übernahme der Ferienzimmer möglich.

 

Dieser Ort passt gut zu Ihnen, wenn Sie …

  • ein eigenständiges gastronomisches Konzept umsetzen möchten
  • einen besonderen Standort langfristig entwickeln wollen
  • Erfahrung in der Gastronomie mitbringen und
  • Lust haben, Radreisenden, Hausgästen und Einheimischen kulinarisch Freude zu bereiten.
Sie können sich vorstellen, diesen besonderen Ort gastronomisch zu beleben? Dann freue ich mich über Ihre Nachricht. Lassen Sie uns gern bei einem Kaffee ins Gespräch kommen und über Ideen, Möglichkeiten und Rahmenbedingungen sprechen.

Angebotsart:

Zahlungsbedingungen: Miete/ Pacht sind Verhandlungsbasis Inbetriebnahme Frühjahr 2027 Ausbau mitgestaltbar

Standort:

Unstruttal, Deutschland

Anfrage senden









zahlen

Felder mit einem * müssen ausgefüllt sein!


Ihre eingegebenen Daten werden aus Sicherheitsgründen gespeichert!
Informationen zum Schutz Ihrer Daten

Details der Anzeige

Anzeigen-ID: 248972

Veröffentlicht: 05. März 2026 09:03Uhr

Aufrufe: 87

Standort

Unstruttal
Deutschland

Anfrage senden









zahlen

Felder mit einem * müssen ausgefüllt sein!


Ihre eingegebenen Daten werden aus Sicherheitsgründen gespeichert!
Informationen zum Schutz Ihrer Daten

Diese Anzeige dem Plattform-Betreiber melden

oben