0
Sie habe noch keine Anzeigen auf Ihrer Merkliste!
  • Alle Anzeigen
  • Gastronomie Hotel (279)
  • Gastroimmobilien (81)
  • Deutschland (54)
  • Sachsen (1)

Angebot von privatem Anbieter!

Diese Anzeige ist ein Angebot eines privaten Anbieters.  Es ist trotzdem möglich, dass Mehrwertsteuer berechnet wird. Bitte klären Sie dies mit dem Anbieter der Anzeige. Hinweise für Ihre Sicherheit

Bahnhof Nebra: Gastronomie sucht Betreiber*In mit Profil


Angebot veröffentlicht am 05.03.2026 Gastroimmobilie DE-Unstruttal
Angebot veröffentlicht am 05.03.2026 Gewerbeimmobilie

Beschreibung zu Bahnhof Nebra: Gastronomie sucht Betreiber*In mit Profil

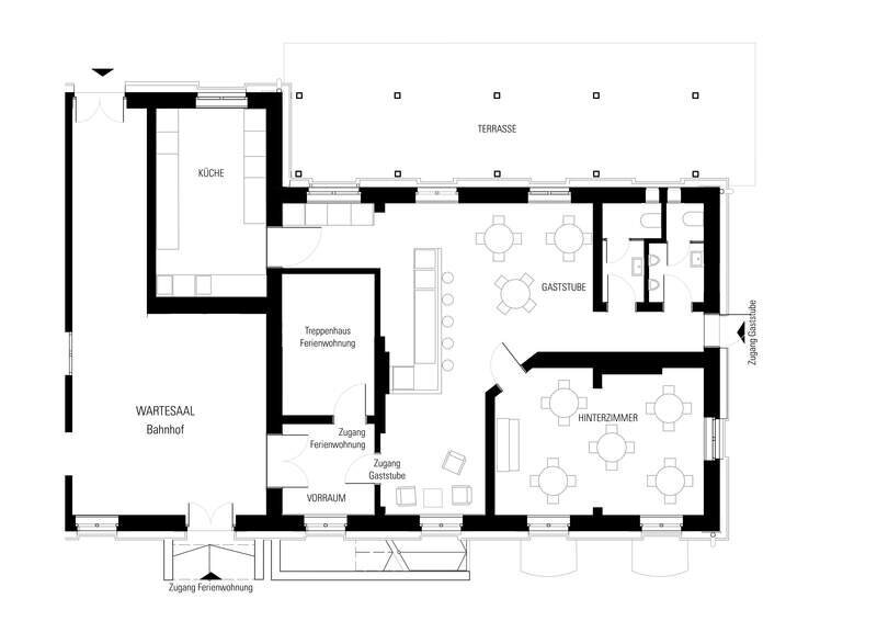
90 qm eigenständige Gastronomie, ca. 35 Innenplätze, Freisitz und überdachter Außenbereich. direkt am Unstrutradweg, etablierter Übernachtungsbetrieb und ergänzende Veranstaltungsfrequenz im Haus.

Im denkmalgeschützten, umfassend sanierten Bahnhof Nebra wird die gastronomische Einheit neu vergeben. Gesucht wird ein Betreiber mit eigenständigem Konzept.

 

Die Einheit

  • ca. 90 qm Gastraum

  • ca. 35 Sitzplätze innen

  • Freisitz auf angrenzender Wiese und zusätzlicher überdachter Außenbereich unter historischem Vordach (Außenplätze in ähnlicher Größenordnung möglich)

  • separater Küchenraum mit Gasanschluss (Ausstattung durch Betreiber realisierbar)

  • Lagerflächen im Keller

  • barrierefreie Erschließung herstellbar

  • öffentliche Parkplätze im direkten Bahnhofsumfeld

  • Fläche in finaler Ausbauphase mit Mitgestaltungsspielraum

Eine Beteiligung an Ausbau und Ausstattung ist möglich; Mietmodelle werden individuell vereinbart.

 

Standort & Frequenz

Direkte Lage am Unstrutradweg (ca. 190 km Radfernweg durch Thüringen und Sachsen-Anhalt) mit ausgeprägter saisonaler Nutzung von April bis Oktober.

Zusätzlich:

  • stündliche Regionalzugverbindungen nach Naumburg und Wangen (Anschluss Arche Nebra)

  • Pendlerverkehr an Werktagen

  • Tages- und Ausflugstourismus an Wochenenden

Im Gebäude selbst:

  • ca. 300 Übernachtungsgäste jährlich (Ferienzimmer: EZ, DZ, Suite; steigend)

  • regelmäßige Nachfrage nach Frühstücks- und Abendangeboten

  • monatliche Kulturveranstaltungen (20–50 Besucher)

  • wachsender Workshop- und Offsite-Bereich

Ergänzende Frequenz ganzjährig durch Veranstaltungen und Übernachtungsgäste.

 

Betreiberprofil

  • eigenständiges gastronomisches Konzept

  • unternehmerische Verantwortung

  • Qualitätsanspruch und langfristige Perspektive

  • Bereitschaft zur Zusammenarbeit bei Veranstaltungen

Das gastronomische Profil liegt vollständig in der Verantwortung des Betreibers. Eine eigene Marke und eigenständige Außendarstellung sind ausdrücklich gewünscht.

Perspektivisch ist auch die Übernahme der Ferienzimmer möglich.

Angebotsart:

Zahlungsbedingungen: Miete/ Pacht sind Verhandlungsbasis Inbetriebnahme Frühjahr 2027 Ausbau mitgestaltbar

Standort:

Unstruttal, Deutschland

Anfrage senden









zahlen

Felder mit einem * müssen ausgefüllt sein!


Ihre eingegebenen Daten werden aus Sicherheitsgründen gespeichert!
Informationen zum Schutz Ihrer Daten

Details der Anzeige

Anzeigen-ID: 248972

Veröffentlicht: 05. März 2026 09:03Uhr

Aufrufe: 10

Standort

Unstruttal
Deutschland

Anfrage senden









zahlen

Felder mit einem * müssen ausgefüllt sein!


Ihre eingegebenen Daten werden aus Sicherheitsgründen gespeichert!
Informationen zum Schutz Ihrer Daten

Diese Anzeige dem Plattform-Betreiber melden

oben